CASALE IN PIETRA CON AMPIO GIARDINO A COLLE DI VAL D’ELSA
- €675.000,00
- €675.000,00
Descrizione
Costa Maremma vende caratteristico casale in pietra di circa 380 mq su tre livelli, già adibito a B&B, immerso nel verde con giardino di 3.300 mq. L’immobile, risalente al XIII secolo e con struttura piramidale tipica delle antiche stazioni di posta, offre ambienti ampi e versatili. Situato nel Comune di Colle di Val d’Elsa (Siena) sulla famosa Via Francigena.
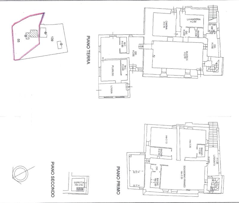
Al piano terra: loggia, due camere con bagno (70 mq circa), magazzino, ampio rustico (55 mq), zona tecnica con impianti (pellet, solare termico, autoclave, ecc.), lavanderia, cantina e bagno.
Al primo piano: ampio soggiorno con cucina, tre camere, tre bagni, e due termo camini.
In mansarda: piccolo vano accessibile da scala interna.
Esterni curati con pergola, laghetto ornamentale, alberi da frutto, due depositi attrezzi, pensilina fotovoltaica da 6kW, bombolone GPL.
Adatta come abitazione principale, struttura ricettiva o bifamiliare.
Indirizzo
Apri su Google Maps-
Città: Colle di Val d'Elsa
-
Regione: Italia
Dettagli
Updated on Novembre 25, 2025 at 5:29 pm-
Prezzo €675.000,00
-
Dimensione 380
-
Terra 3300
-
Camere 5
-
Stanze 10
-
Bagni 5
-
Tipo di immobile Casolare
-
Stato dell'immobile In vendita
Informazioni di contatto
Vedi la lista- Roberta Tozzini